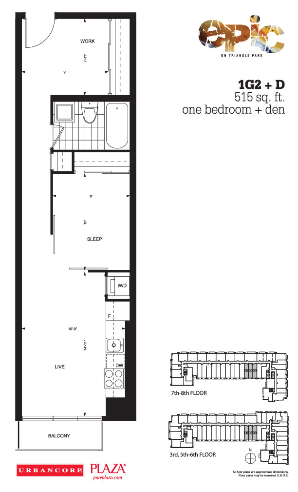
Register For Epic On Triangle Park
Urbancorp Plaza